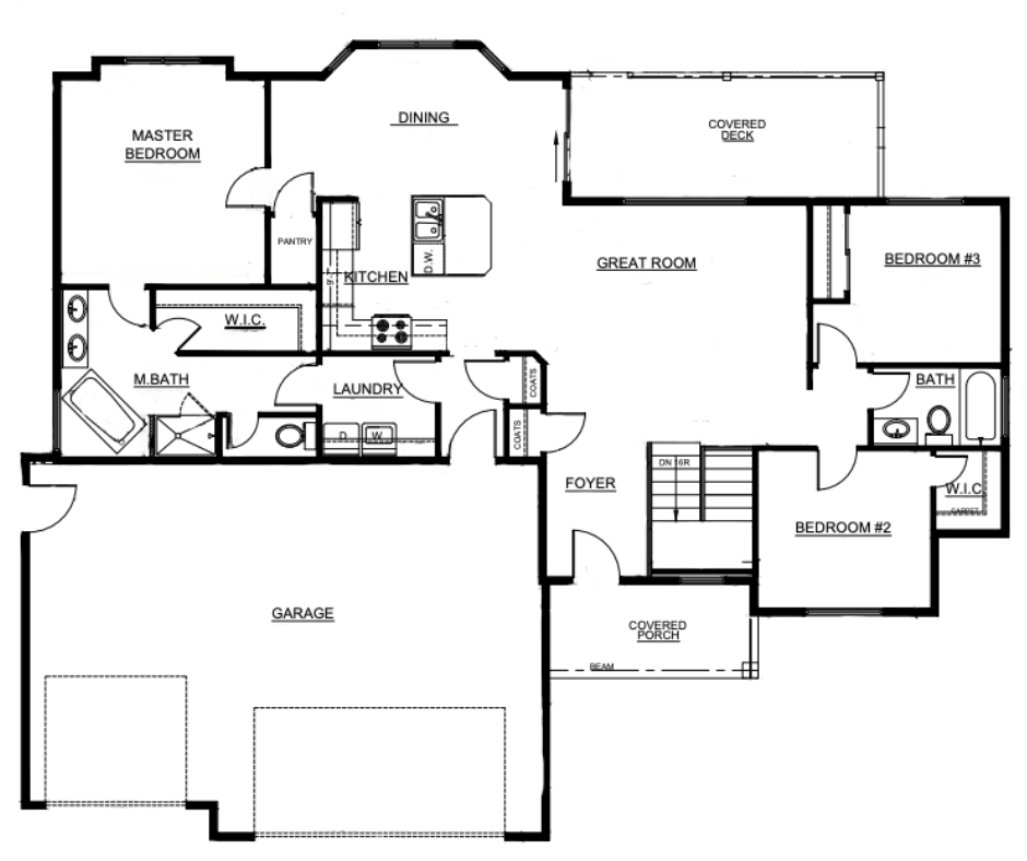
1141 River Heights Drive, Mills, Wy 82604
- Listed at $539,000
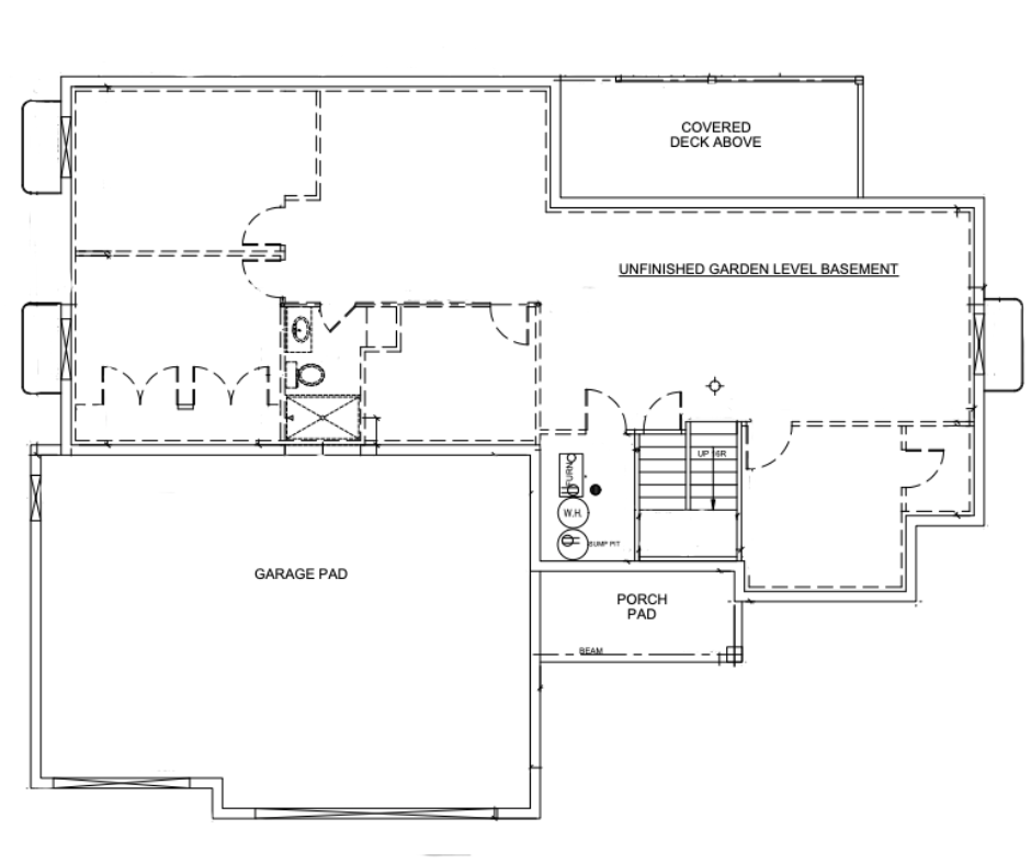
- 1,542 SqFt main level (opt. basement finish with 3 bedrooms, 1 bathroom)
- 3,084 total SqFt
- 3 bedrooms, 2 bathrooms
- 3-car garage
-Covered deck
-Walk out basement
- Estimated completion June 2026
Discover exceptional craftsmanship in this brand-new "Harmon" plan by Superior Construction, located in the sought-after River Heights neighborhood. With 3 bedrooms, 2 bathrooms, and an attached 3-car garage, this home offers 3,084 total sq ft, including an unfinished walk-out basement for future expansion. The thoughtful design features a main floor primary suite with a custom tile shower and a large walk-in closet, plus a convenient main floor laundry room. The custom kitchen includes a full tile backsplash, stainless steel appliances, a spacious pantry, upgraded quartz countertops and plenty of workspace for both everyday cooking and entertaining. Step outside to the 8' x 10' covered Trex deck, or welcome guests at the covered entryway. With front yard landscaping, sod, and a sprinkler system included, this home offers instant curb appeal and low-maintenance beauty. Experience the quality and comfort of Superior Construction.
